From Children to Charm

Location

Ampang Hilir, Kuala Lumpur

Previous project

Extraordinarily Opulent

Ampang Hilir, Kuala Lumpur

From Children to Charm

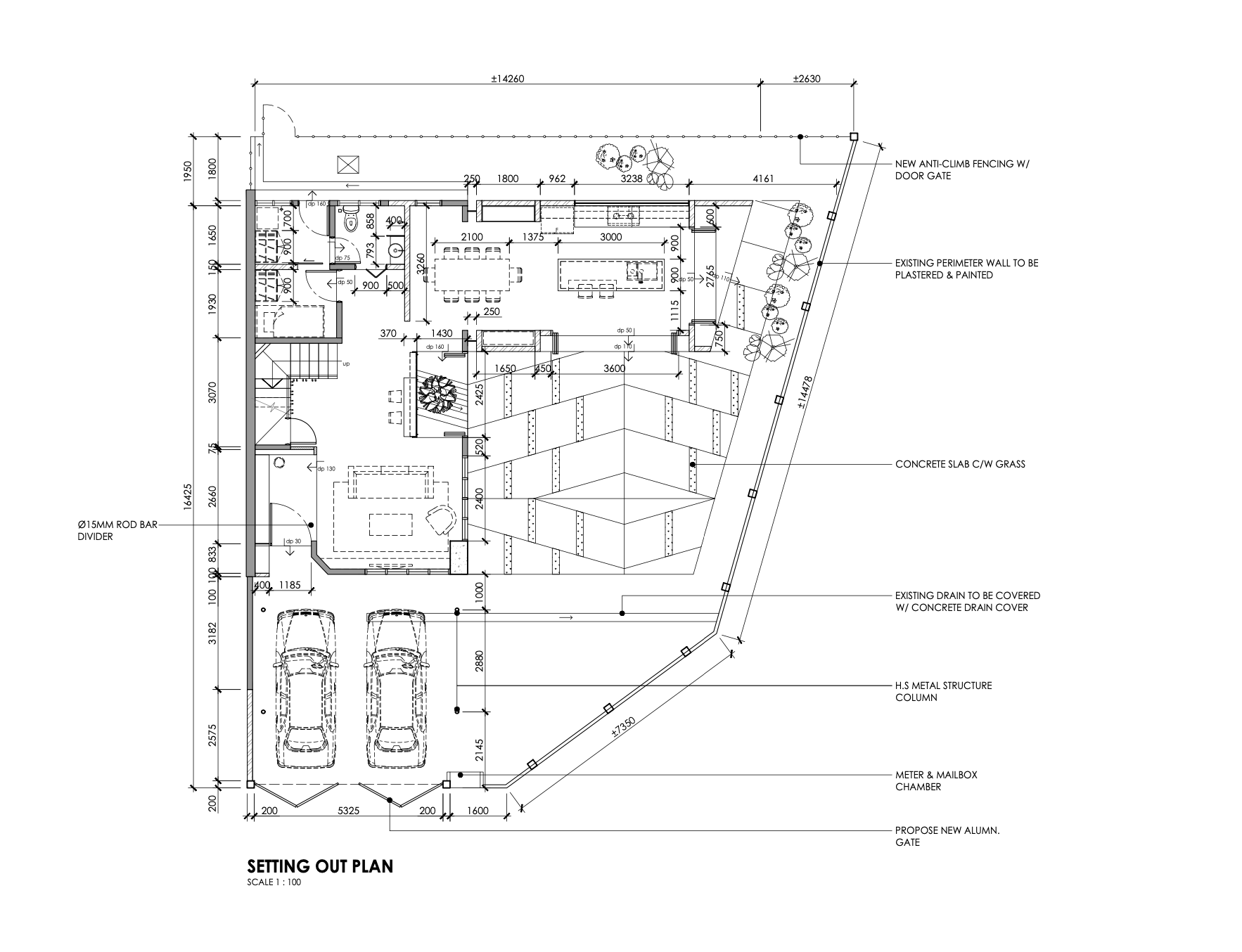
A 25-year old terrace that was once a kindergarten caught the eyes of a creative duo. Much to their liking, this ex-learning centre offered a vast space in both indoor and the outdoor field. Its construction, however, was reimagined to break the norms of a typical suburban Malaysian terrace.

Remodeling spaces and structures usually take an extravagant approach. Unlike most, we wanted to meet one important factor – to avoid disrupting the overall typology and its place within the charmingly old neighbourhood. The preservation of inclusivity is attained through carefully designed extensions which are highlighted by a bold, contrasting colour. The revived façade reveals itself with a new life, all while securing its belonging among its neighbouring homes.

The homeowners had a peculiarity towards an abundance of sunlight and ventilation. Two areas which proved to be a challenge with traditional terrace house designs. We have successfully executed several spaces to meet these needs.

The living room carves out a void space with a tree (tristania obovata) for a centrepiece. This creates a visual continuity of ground level and first level while enhancing views and lighting quality inside, allowing the experience of passage in time indoors. Natural sunlight also coincides with the home’s car porch and bathrooms through the thoughtful usage of skylights and windows. As for the new extended kitchen, it connects seamlessly to the outdoor garden, perfect to fuel their passion for cooking, have interactions with resident furry friends and occasional pleasure to have relaxing guests visits.

Who knew a humble neighbourhood kindergarten could breathe a new life through this beautifully reimagined home for its new occupants?